
上海恒溫恒濕機廠家供應
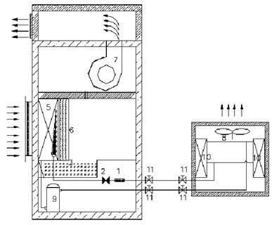
加上、節能、等優勢能夠提供給室內泳池一個良好的溫度和濕度,能夠室內游泳池的通風效果,以及給每一個愛1、綜合考慮泳池池水加熱溫度的特點,自動平衡泳池加熱和空氣加熱的加熱量。
2、根據游泳場館的溫濕度自動切換運行模式,人性化自動控制恒溫恒濕。
3、泳池多功能除濕熱泵自動根據預告設定好的運行時間定時運行,場館在空閑期間不會出現溫濕度不符合要求的情況。
4、泳池多功能除濕熱泵機組能夠根據制冷與制熱量的實際需求,泳池除濕熱泵空調,自動調節啟動單系統或多系統運行,從而減少壓縮機的啟動頻率,泳池除濕熱泵機組,延長壓縮機和機組使用壽命。
5、泳池多功能除濕熱泵采用智能設計,并可自動調節因散熱不好而造成的機組損壞或故障報警,解決室外冷凝散熱器安裝難題。好游泳的朋友提供一個適宜安全的場所。為什么要使用除濕機:
溫濕度與疾病:
傳統的中醫學把“風、寒、暑、濕、燥、火”稱為六氣.實際上,六氣也就是空氣流動,氣溫高低、濕度大小的反映.當六氣發生驟變或在身體抵抗力和適應能力下降時,二集一體泳池除濕熱泵,六氣就成為致病的因素.春天多風病,盛夏多暑病,天津泳池除濕熱泵,夏末秋初多濕病,深秋多燥病,冬天多寒病。許多疾病都與溫濕度有密切的關系,尤其與過低的濕度有關。現代醫學發現:在45%--55%的相對濕度下,病菌平均壽命短,過高或過低的濕度都會導致病菌壽命延長.當空氣濕度為35%RH時,鼻部和肺部呼吸道粘膜上的纖毛運動減緩,灰塵、菌等容易附著在粘膜上,三集一體泳池除濕熱泵,刺激喉部引發咳嗽和其它呼吸道疾病。空氣濕度低的時候,病毒和能引發感染的革蘭氏陽性菌的繁殖速度會加快,泳池除濕熱泵公司,而且容易擴散,引發疾病.此外,過敏性皮炎皮膚瘙癢等過敏性疾病也都和空氣干燥有關.恒溫恒濕機精密空調采用哪些電氣元器件?
壓縮機也是設備核心配件采用Copeland美國谷輪,壓縮機和主要配件通過制冷系統科學合理的設計在不同環境正常運行克服了壓縮機行業機型制冷量除濕量不足機組頻繁啟動產品故障率高的缺點同時也提高了產品的使用時長。
咨詢熱線
133-6050-3273
